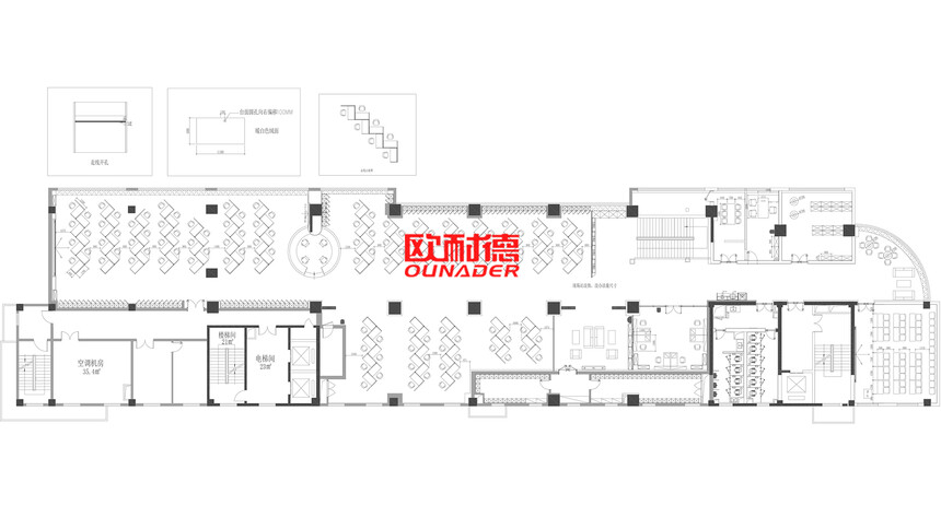
项目名称:中国电信股份有限公司汉中分公司
项目地址:陕西汉中市
项目时间:2023年12月
中国电信股份有限公司汉中分公司成立于2004年04月26日,经营范围包括经营基础电信业务与增值电信业务(凭许可证在有效期内经营,未经许可不得经营);经营与通信及信息业务相关的系统集成、技术开发、技术服务、技术培训、技术咨询、信息咨询、设备及计算机软硬件等的生产、销售、安装和设计与施工;房屋、通信设施租赁;安全技术防范系统的设计、施工和维修;广告业务。














项目名称:中国电信股份有限公司汉中分公司
项目地址:陕西汉中市
项目时间:2023年12月
中国电信股份有限公司汉中分公司成立于2004年04月26日,经营范围包括经营基础电信业务与增值电信业务(凭许可证在有效期内经营,未经许可不得经营);经营与通信及信息业务相关的系统集成、技术开发、技术服务、技术培训、技术咨询、信息咨询、设备及计算机软硬件等的生产、销售、安装和设计与施工;房屋、通信设施租赁;安全技术防范系统的设计、施工和维修;广告业务。













